Расчет необходимого количества элементов фасадной подсистемы для монтажа тяжелых фиброцементных панелей типа НИЧИХА, КАМЮ, АСАХИ, КОНОШИМА и т.д
Калькулятор расчета по площади фасада
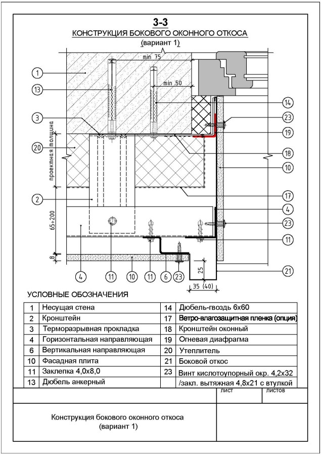
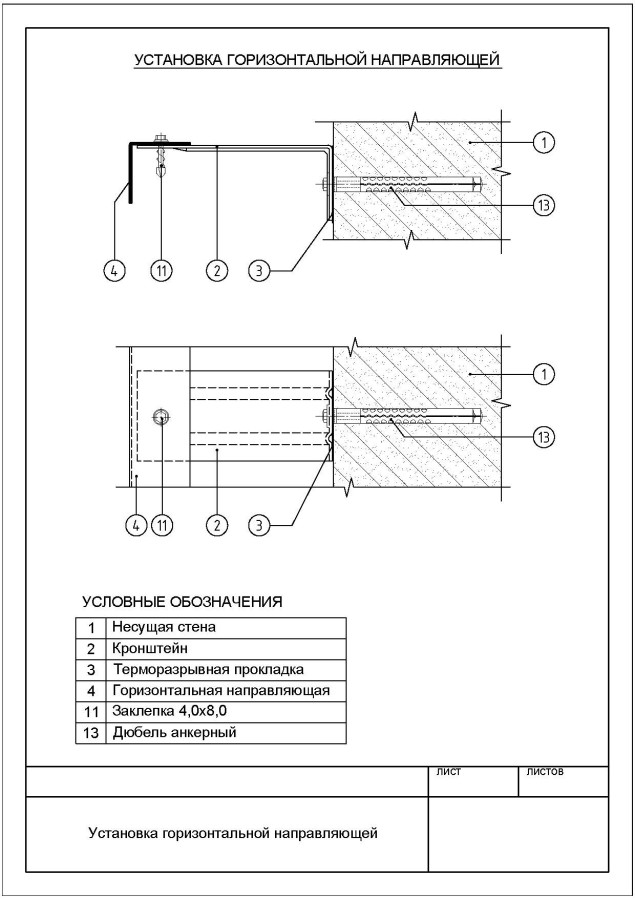
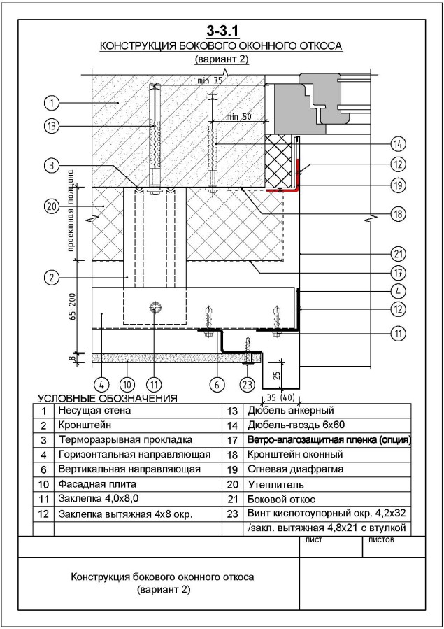
Схема монтажа
Можно выбрать схему расчета:
Подсистема под фиброцемент + утепление 100мм
Подсистема под фиброцемент + утепление 100мм
Площадь стен:
м²
Наименование
Ед. изм.
Кол-во 1 м²
Общее кол-во
Цена за 1 шт
Сумма
Утепление толщиной 50мм+50мм, пленки, грибки
Базалит Л-50 50мм, 1200х600мм, нижний слой
шт
0.18
1 474
Базалит Л-75 50мм, 1200х600мм, верхний слой
шт
0.18
2 046
ОНДУТИС PRO A пленка влаго-ветрозащитная, 75м2
шт
0.02
3 950
Дюбель для изоляции IZO 10х160 с пласт.стержнем
шт
7.69
9
Подсистема под панели вертикально горизонтальная
Кронштейн 150*50*50мм
шт
3.03
26
Кронштейн Усиленный ККУ 150мм
шт
0.7
63
Паронитовая прокладка 50*50мм
шт
3.03
3,5
Паронитовая прокладка 90*90мм
шт
0.7
9,5
Профиль горизонтальный основной 40*40 3000мм
шт
0.63
250
Профиль вертикальный промежуточный ПВZ 3000мм
шт
0.35
250
Профиль вертикальный основной ВО, 80мм 3000мм
шт
0.08
590
Профиль вертикальный основной ВО 65мм 3000мм
шт
0.2
435
Крепеж
Дюбель фасадный 10*100мм, Россия
шт
3.85
26
Саморез кровельный 5,5*19мм цинк 250шт
шт
0.06
482
Саморез 4,2*16мм для монтажа панелей 1000шт
шт
0.02
586
Стоимость за 1 м²:
Предварительный расчет:
Точный расчет необходимо делать по чертежам, отправьте чертеж
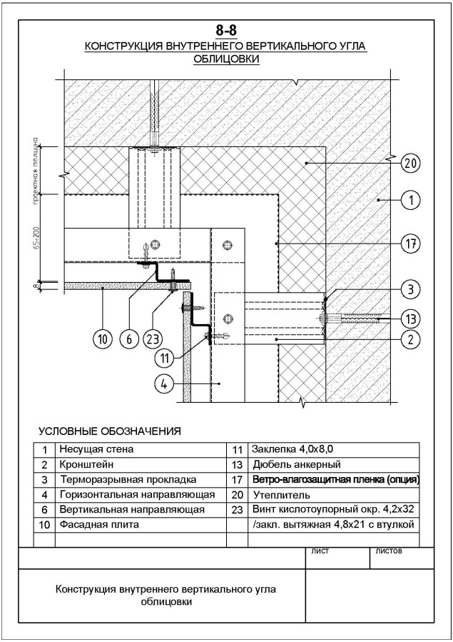
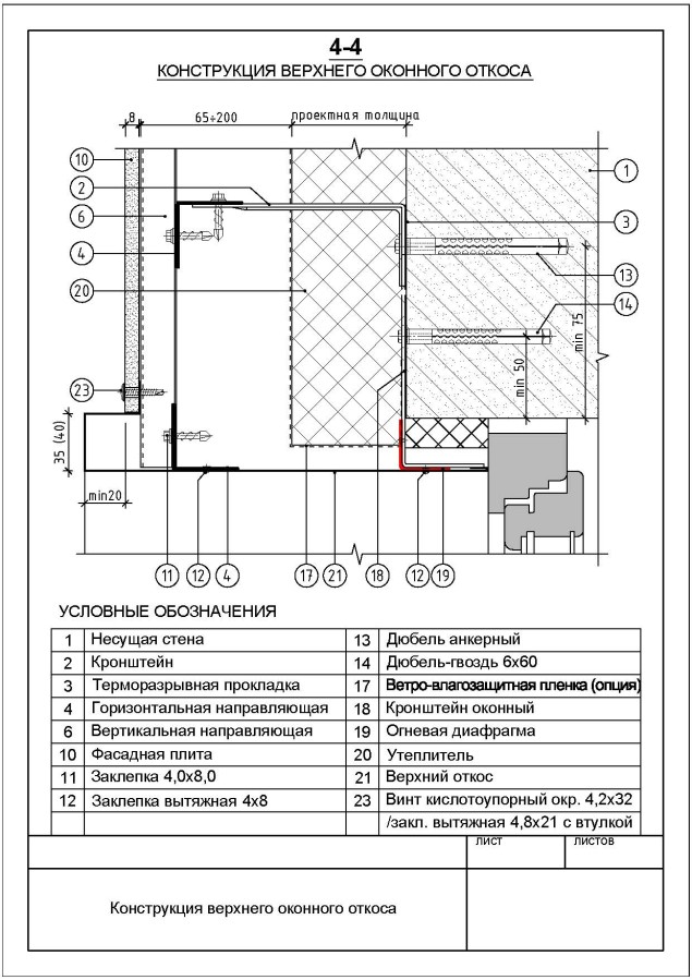
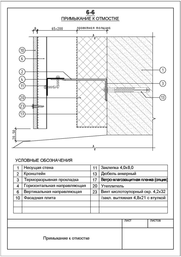
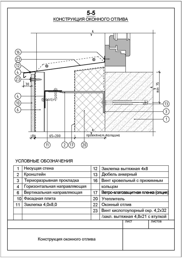
Альбом технических решений
Узлы и схемы монтажа, необходимые элементы и общие правила организации работ по монтажу фиброцементных плит












































